type de projet: CHALET
site: Grenville-sur-la-Rouge, QC.
année: 2025
images: Raphaël Thibodeau
entrepreneur général : SIT Construction
publications : Archdaily, Archello, Archilovers, Archup, Arqa
Chalet Scotch
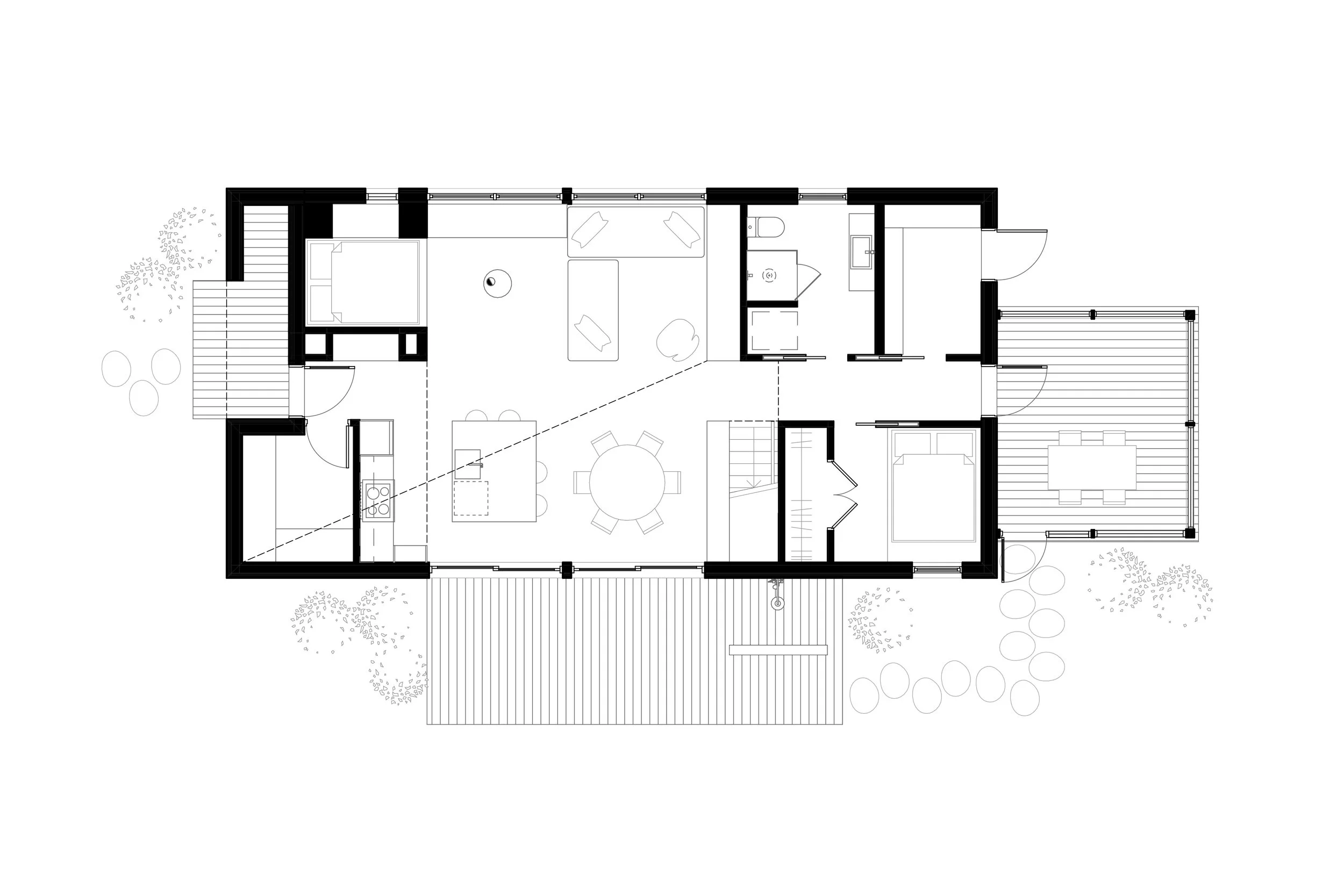
Implanté sur un plateau niché en pleine forêt, ce chalet tout de gris vêtu est à la fois un lieu de relaxation et de rassemblement. L’objectif du projet était de créer un espace compact, convivial et intime. Pour ce faire, la volumétrie du toit a été modulée afin de repousser les espaces privés (chambre principale et bureau) à l'étage, à l'opposé de l'entrée. Cette stratégie confère au chalet une première impression tout en retenue, avec une façade principale sobre et humble. À partir d’un volume simple, le projet se distingue par la singularité de chacune de ses façades, culminant avec la façade la plus imposante et largement vitrée, tournée vers la forêt.
À l’intérieur, l’ambiance est chaleureuse et feutrée grâce au lambris de bois qui habille la majorité des pièces. Le plan a été soigneusement réfléchi pour maximiser l’apport de lumière naturelle et favoriser la ventilation traversante. Un axe longitudinal de circulation relie les entrées, tandis qu’un axe transversal inonde l’espace central de lumière. La généreuse fenestration sur 180 degrés invite la forêt à pénétrer les espaces de vie. Sous son toit cathédral, la pièce centrale regroupe le salon, la cuisine et la salle à manger, ainsi qu’une niche aménagée près du foyer, pouvant servir de chambre d’appoint ou de coin de lecture.
Plus qu’un simple chalet, le projet propose une expérience immersive où chaque espace dialogue avec la forêt. Conçu avec une empreinte de moins de 100 m², il offre un cadre de vie paisible et accueillant, favorisant la détente et transformant le quotidien en véritable communion avec la nature.
